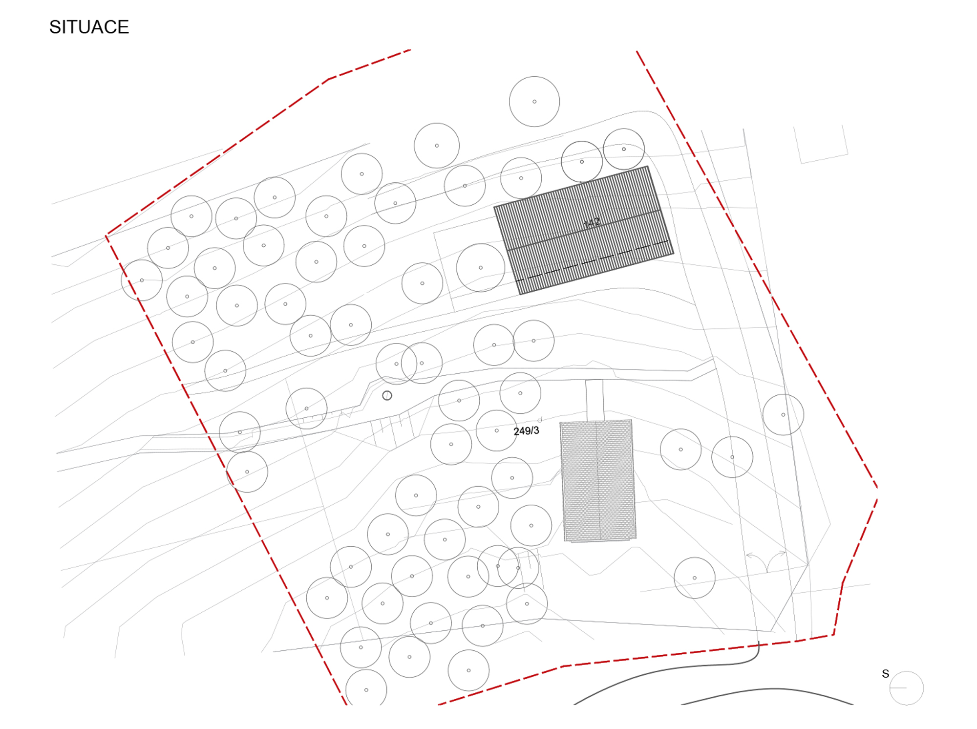
Soubor objektů, dům a hospodářská stodola, reflektuje myšlenku návratu do krajiny a vychází z tradiční venkovské typologie. Nahrazují původní dožilé objekty. 

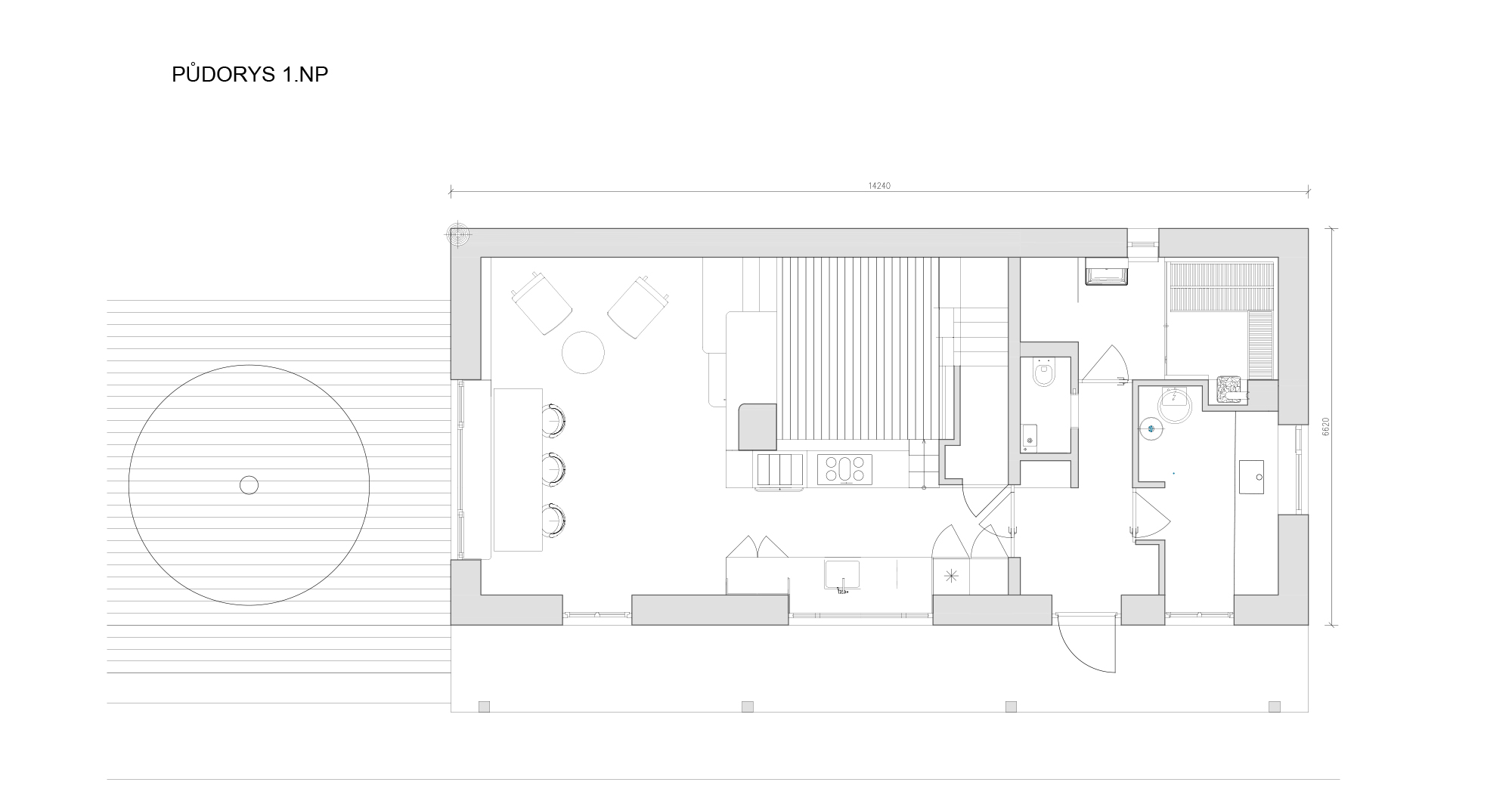
Hospodářská Stodola je situována kolmo k vrstevnicím a je částečně zapuštěna do svahu. Dům je umístěn podélně s vrstevnicemi, což optimalizuje jeho vztah k okolní krajině. Obytný prostor je skrze velké okno orientován na výhled do sadu.

Charakteristickým prvkem vnějšího řešení je předsunuté zápraží, které poskytuje krytý venkovní prostor a zároveň jasně odkazuje na funkční vstupy vesnických stavení, definuje přechodovou zónu mezi domem a sadem.

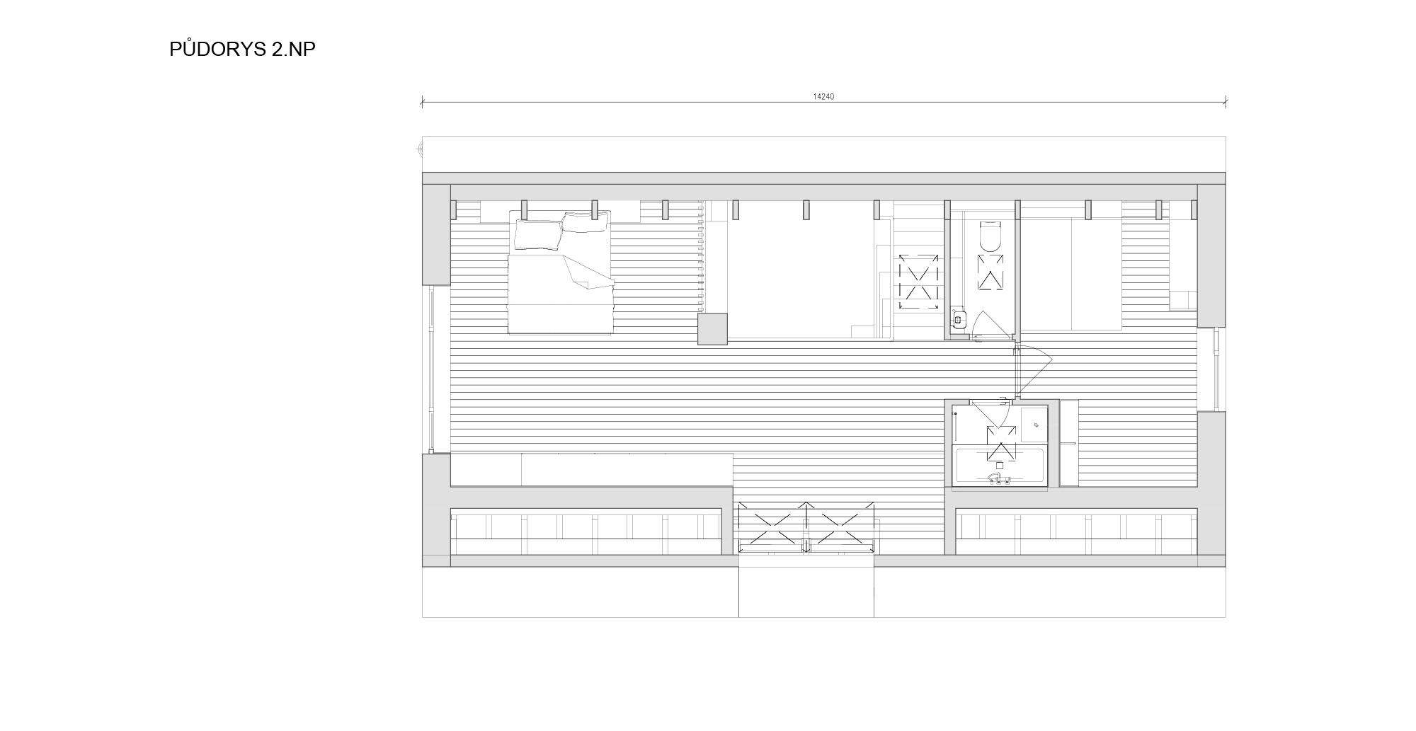
V protikladu k uzavřeným venkovským světnicím je vnitřní prostor navržen jako jediný, velkorysý, otevřený celek, který plynule propojuje denní zónu. 

Srdcem a centrem domu je autorská pec, umístěná ve středu obytné místnosti. Její hmota a funkce odkazuje na historickou důležitost pece v životě venkovského domu. Její komín, klíčový vertikální prvek, prostupuje otevřeným prostorem v podkroví a stává se tak vizuální osou, která spojuje všechny úrovně domu.

 

Dům a stodola jsou místem odpočinku od městského shonu i zázemím pro zpracování ovoce, medu a práci v sadu.

 

ellement architects s.r.o.
Ing. arch. Jitka Ressová, MgA. Jan Pavézka

stavební řešení: BcA. Michal Babic 
projekt: 2018-2024
realizace: 2023-2025

Foto: Lina Németh

 

Zavřít BÍLÝ DŮM V SADU


^

ellement architects s.r.o.
nad ovčírnou II. 1295, 76001 Zlín
Czech Republic



© ellement architects 2002 - 2026